DETAILS
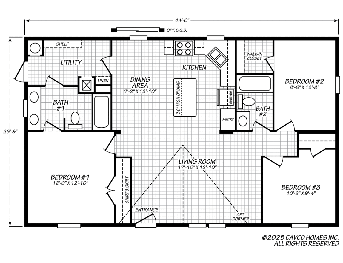
Special OrderThe Fleetwood 28443 is a compact yet well-laid-out manufactured home offering about 1,173 sq ft of living space with 3 bedrooms and 2 bathrooms. The design emphasizes openness: the living, dining, and kitchen areas flow into one another, making the interior feel more spacious than the footprint might suggest. The master suite includes a private bath and a decent closet, while the secondary bedrooms are positioned for privacy. Neutral finishes, clean lines, and ample natural light through the windows give the home a modern yet comfortable vibe.
BROCHUREHOME FEATURES
Open Concept
Split Bedrooms
Kitchen Island with Breakfast Bar
Utility Room
Secondary Bedrooms with Walk-in Closets
Master Ensuite with Double-Sink Vanity
Property Highlights:
3
Beds
2
Baths
1173
Sq Ft
28x44
Size
Featured Homes
Let’s get started. Find your dream home today!
Search Let’s get started. Find your dream home today!
3 Beds
1680 Sq Ft
2 Baths
56x32